☰
Building materials catalog
BIM solutions
Architect gallery
Detail drawings
Textures
Contact
BIM shop
ENG
Sign in
Bélik István
Szentendre - örökpanorámás hegyoldal
Back
Architecture Gallery
Bélik István pages
Contact the designer
4287
/
3
Szavazz
Installation mode:
family house
Style:
Mountainous
Floor area:
160 m²
Description:
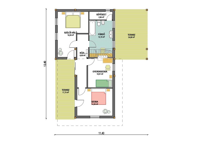
Földszint 66,22m2 Földszinti terasz 42,53m2 Emelet 75,72m2 Emeleti terasz 23,99m2 Összes lakóterület 141,94m2 Gépkocsibeálló 29,81m2 Összes terasz 66,52m2
Ad
Like all websites, eptar.hu uses cookies for better and safer operation.
More information
Accept