☰
Építőanyag katalógus
BIM megoldások
Építészgaléria
Csomópontok
Textúrák
Elérhetőség
BIM shop
HUN
belépés
Csomóponti rajzok
Csomópont keresés
Csomópontok kategóriákban
Csomópontok metszeten
Kémények
Nyílászáró
Ablak
Beltéri ajtó
Automata ajtó
Padló, Lábazat
Talajon fekvő padló
Alápincézett épület
Falazat - Födém
Külső fal - födém
Közbenső födém - Erkély
Árkád födém
Belső fal - födém
Vázkitöltő falak
Lépcső
Felfelé hűlő födém
Falcsatlakozás
Födém rétegek
Tető
Magastető
Eresz kialakítás
Taréj kialakítás
Vápa megoldás
Tetőtéri ablak kialakítása
Tetőelemek kialakítása
Gerinckialakítás
Tető és fal csatlakozása
Torokgerenda, fogópár
Zöldtető
Fénycsatornák
Lapostető
Egyenes rétegrend
Fordított rétegrend
Zöldtető
Kéthéjú lapostető
Könnyűszerkezetes megoldások
Kert, térburkolat, mélyépítés
Térkő gépjárműút, gyalogút
Lépcső
Vízelvezetés
Növénytámfal
Kerítés
Előregyártott akna
Pincefal
Talajpára elleni szigetelés
Belső teherhordófal kialakítása
Letöltések száma
7987703+
CAD fileok száma
1791+
Csomópontok száma
809+
Amennyiben tetszik weboldalunk, kérjük jelezze meg egy kattintással, facebook oldalunkon.
Hirdetés
Pincefal csomópontok
Belső teherhordófal kialakítása
Belső teherhordó fal és pincepadló kapcsolata
Belső teherhordó fal alapozása, alápincézetlen épületnél
Leier
Belső uni pincefal alapozása, talajnedvesség elleni szigetelés, temperált pince esetén
Leier
Belső zsalukő pincefal alapozása, talajnedvesség elleni szigetelés, fűtetlen pince esetén
Leier
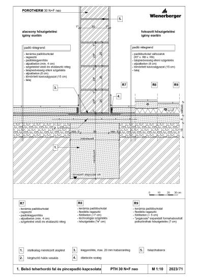
Belső teherhordó fal és pincepadló kapcsolata - PTH 30 N+F neo
Porotherm
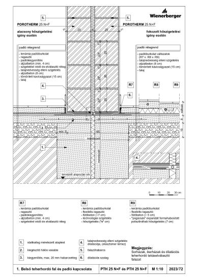
Belső teherhordó fal és padló kapcsolata - PTH 25 N+F és PTH 25 N+F
Porotherm
Válaszfal és pincepadló kapcsolata
Válaszfal alapozása, nem teherhordó (vasalatlan) aljzat esetén
Leier
Válaszfal és pincepadló kapcsolata - PTH 10 N+F
Porotherm
Belső teherhordó fal részben alápincézett épületnél
Pincefal részben alápincézett épületnél - Pincetégla + PTH 30 N+F neo
Porotherm
1. Pincefal részben alápincézett épületnél - Pincetégla + PTH 30 N+F Rapid
Porotherm
Hirdetés
Mint minden weboldal, az eptar.hu is sütiket használ a jobb és biztonságosabb működés érdekében.
További információk
Elfogad