Detail drawings

Austrotherm
Bramac
Hofstädter Kft.
Hörmann
Knauf Insulation
Terrán
Ytong
Wienerberger
Wienerberger
Wienerberger
Search Detail drawings 


Alapkép
Hirdetés


Roof Detail drawings   (Lapostető)
  Lapostetős megoldások
03.76. Attika kialakítás fekvő falpallók esetén acél tartószerkezettel, vízszintes metszet
03.77. YTONG WL fal és DA tetőpalló attika csomópontja lapostető esetén acél tartóvázzal
03.78. YTONG fekvő, nem teherhordó falpanel és csarnokvázak szerkezeti kapcsolatai
01.09. Monolit vasbeton attika fal SILKA burkoló előtétfallal
  Lapostetős épület attika csomópontjai
Lapostetős épület - attika és födém kapcsolata - PTH 44 X-therm + vakolat
Lapostetős épület - attika és födém kapcsolata - PTH 38 X-therm + vakolat
Lapostetős épület - attika és födém kapcsolata - PTH 30 N+F neo + téglaburkolat
Lapostetős épület - attika és födém kapcsolata - PTH 44 Thermo Profi + vakolat
Lapostetős épület - attika és födém kapcsolata - PTH 44 X-therm Rapid + vakolat
Lapostetős épület - attika és födém kapcsolata - PTH 38 Thermo Rapid + vakolat
Lapostetős épület - attika és födém kapcsolata - PTH 38 X-therm Rapid + vakolat
Lapostetős épület - attika és födém kapcsolata - PTH 30 N+F Rapid + hőszigetelés + vakolat
Lapostetős épület - attika és födém kapcsolata - PTH 38 Thermo Rapid + téglaburkolat
  Kéményátvezetés lapostetőn
Mestergerendás födémben, teherhordási iránnyal párhuzamos metszet
  Wolf Haus járható lapostető
Lábazat terasztetőnél ágyazott burkolat esetén
Lábazat terasztetőnél födém ugrás 10 cm, terasznál
Lapostető attikával kiszellőztetve, homlokzati hőszigetelő lemezzel
Lapostető egyhéjú hidegtetőnél attika
Lapostető egyhéjú hidegtetőnél külső, pontszerű vízelvezetéssel
Lapostető kéthéjú hidegtetőként, külső, vonalmenti vízelvezetéssel
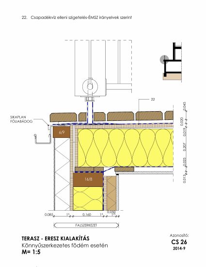
Terasz - eresz kialakítás Könnyűszerkezetes födém esetén
Terasz lábazat, ajtó beépítés Könnyűszerkezetes födém esetén
Terasz lábazat Könnyűszerkezetes födém esetén
  Fénycsatorna
  Knauf Insulation SUPAFIL fújható üveggyapot - lapostetők
T 2.1 Kéthéjú hidegtető - légrés részleges kitöltése
T 2.2 Kéthéjú hidegtető - légrés teljes kitöltése
  Knauf Insulation Heraklith Fagyapot - Lapostető
F-LT-1 Fémlemez fedésű, vakolt attika kialakítása
F-LT-2 Vakolt lábazat egyenes rétegrendű tető esetén
  Knauf Insulation Kőzetgyapot - Lapostető
K-LT-1 Egyenes rétegrendű, terheletlen lapostető I.
K-LT-2 Egyenes rétegrendű, terheletlen lapostető II.
K-LT-3 Egyenes rétegrendű, leterhelt lapostető I.
K-LT-4 Egyenes rétegrendű, leterhelt lapostető II.
K-LT-5 Egyenes rétegrendű zöldtető
K-LT-6 Lefedés nélküli attika kialakítása
K-LT-7 Fémlemez fedésű attika kialakítása
K-LT-8 Finombeton fedésű attika kialakítása
K-LT-9 Vakolt lábazat egyenes rétegrendű tető esetén
K-LT-10 Vakolt lábazat tűzgátló sávval kialakítva
K-LT-11 Szerelt lábazat, könnyű homlokzatburkolattal
K-LT-12 Szerelt lábazat, nehéz homlokzatburkolattal
  Knauf Insulation Üveggyapot - Lapostető
Ü-LT-1 Fémlemez fedésű attika kialakítása
Ü-LT-2 Finombeton fedésű attika kialakítása
Ü-LT-3 Szerelt lábazat, könnyű homlokzatburkolattal
Ü-LT-4 Szerelt lábazat, nehéz homlokzatburkolattal
Straight layer sequence – thermal insulation + waterproofing
  Nem járható
L-04 01 Egyenes rétegrendű nem járható tető trapézlemez födémen
L-04 03 Egyenes rétegrendű nem járható tető vasbeton födémen
L-04 03a Egyenes rétegrendű nem járható tető vasbeton födémen – attika
L-05 01 Tető felújítása egyenes rétegrendű nem járható tetőként
  Terasztető
L-01 01 Egyenes rétegrendű terasztető
  Parkolótető
L-02 01 Egyenes rétegrendű személygépkocsival járható tető
Reversed layer sequence – waterproofing + thermal insulation
  Nem járható - kettős hőszigetelésű lapostető
L-04 02 Fordított rétegrendű nem járható tető
L-04 02a Fordított rétegrendű nem járható tető - attika
L-05 02 Tető felújítása duo-rendszerű nem járható tetőként
L-05 03 Tető felújítása duo-rendszerű zöldtetőként
  Terasztető
L-01 02 Fordított rétegrendű terasztető
  Parkolótető
L-02 02 Fordított rétegrendű gépkocsival járható tető
Green roof
  Straight layer sequence – thermal insulation + waterproofing
L-03 01 Egyenes rétegrendű zöldtető
  Reversed layer sequence – waterproofing + thermal insulation
L-03 02 Fordított rétegrendű zöldtető
  Rooffelújítás
L-05 03 Tető felújítása duo-rendszerű zöldtetőként
Cold flat roof
  Nem járható
Light construction solutions
  Wolf Haus tető rétegrend
TETŐTÉRI ferde térelhatároló szerkezet, szarufák közötti hőszigeteléssel szarufák feletti teljes deszkázattal szarufák alatti ritkított deszkázattal
Tetőtéri ferde térelhatároló szerkezet, szarufák feletti hőszigeteléssel
Nemjárható lapostető
Tetőtéri ferde térelhatároló szerkezet, szarufák közötti hőszigeteléssel szarufák alatti ritkított deszkázattal 2
Tetőtéri ferde térelhatároló szerkezet, szarufák közötti-, és alatti hőszigeteléssel szarufák feletti teljes deszkázattal
Tetőtéri ferde térelhatároló szerkezet, szarufák közötti-, és alatti hőszigeteléssel
Tetőtéri ferde térelhatároló szerkezet, szarufák közötti-, és alatti hőszigeteléssel szarufák feletti teljes deszkázattal passzívházhoz
Nem járható lapostető passzívházhoz
Tetőtéri ferde térelhatároló szerkezet, szarufák közötti-, és alatti farost hőszigeteléssel
Tetőtéri ferde térelhatároló szerkezet, szarufák feletti farost hőszigeteléssel
Hirdetés
    Like all websites, eptar.hu uses cookies for better and safer operation.       More information