Detail drawings

Austrotherm
Bramac
Hofstädter Kft.
Hörmann
Knauf Insulation
Terrán
Ytong
Wienerberger
Wienerberger
Wienerberger
Search Detail drawings 


Alapkép
Hirdetés


Floor, Footing Detail drawings
Floor lying on the ground
  Külső teherhordó fal lábazata
1. Külső teherhordó fal lábazata - PTH 30 N+F neo + hőszigetelés + vakolat
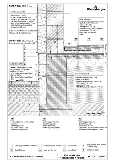
2. Külső teherhordó fal lábazata - PTH 30 N+F neo + hőszigetelés + vakolat
3. Külső teherhordó fal lábazata - PTH 30 X-therm Rapid + hőszigetelés + vakolat
4. Külső teherhordó fal lábazata - PTH 44 X-therm Rapid + vakolat
5. Külső teherhordó fal lábazata - PTH 44 X-therm Rapid + vakolat
Külső teherhordó fal lábazata - PTH 44 X-therm + vakolat
Külső teherhordó fal lábazata - PTH 30 N+F neo + téglaburkolat
Külső teherhordó fal lábazata - PTH 38 Thermo Rapid + vakolat
Külső teherhordó fal lábazata - PTH 44 Thermo Rapid + vakolat
Külső teherhordó fal lábazata - PTH 50 X-therm Rapid + vakolat
Külső teherhordó fal lábazata - PTH 50 Thermo Rapid + vakolat
Külső teherhordó fal lábazata - PTH 38 Thermo Rapid + téglaburkolat
Külső teherhordó fal lábazata - PTH 44 X-therm Rapid + vakolat (12)
Külső teherhordó fal lábazata - PTH 30 X-therm Rapid + hőszigetelés + vakolat
Zsalukő lábazat, alápincézetlen épület esetén
Külső teherhordó fal lábazata - PTH 44 X-therm Rapid + vakolat (15)
  Díszburkolatok
02.30. Homlokzati vázkitöltő fal független, légréteges burkolattal, hőszigeteléssel
  Talajon fekvõ padló hőszigetelés
P-01 01 Talajon fekvő padló hőszigetelése vízszigeteléssel védetten expandált polisztirolhabbal
P-01 02 Talajon fekvő padló hőszigetelése vízszigeteléssel nem védetten EXPERT hőszigeteléssel
P-01 03 Talajon fekvő padló hőszigetelése vízszigeteléssel nem védetten extrudált polisztirolhabbal
P-01 03 Talajon fekvő padló hőszigetelése vízszigeteléssel nem védetten extrudált polisztirolhabbal lemezalap alatt
P-04 01 Padlófűtés kialakítása talajon fekvő padlón
P-04 02 Padlófűtés kialakítása közbenső födémen
P-05 01 Hűtött tér padlójának hőszigetelése expandált vagy extrudált polisztirolhab hőszigeteléssel
  Lábazat és talajon fekvõ padló csatlakozás
F-02 01 Lábazati fal hőszigetelésének kialakítása alápincézett épület esetén EXPERT FIX hőszigeteléssel
F-02 02 Lábazati fal hőszigetelésének kialakítása alápincézetlen épület esetén EXPERT FIX hőszigeteléssel
  Szerelt könnyűszerkezetes épület lábazata
Hirdetés
    Like all websites, eptar.hu uses cookies for better and safer operation.       More information