Csomóponti rajzok

Austrotherm
Bramac
Hofstädter Kft.
Hörmann
Knauf Insulation
Terrán
Ytong
Wienerberger
Wienerberger
Wienerberger
Csomópont keresés 


Alapkép
Hirdetés


Nyílászáró csomópontok
Ablak
  Ablakbeépítés függőleges metszete
F-03 02 Légrés nélküli réteges falszerkezet EXPERT FIX hőszigeteléssel
F-03 02 Légrés nélküli réteges falszerkezet EXPERT FIX hőszigeteléssel 2.
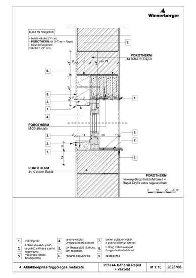
Ablakbeépítés függőleges metszete - PTH 44 X-therm + vakolat
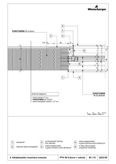
Ablakbeépítés függőleges metszete - PTH 38 X-therm + vakolat
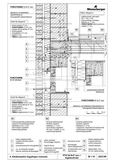
Ablakbeépítés függőleges metszete - PTH 30 N+F neo + téglaburkolat
Ablakbeépítés függőleges metszete - PTH 30 N+F neo + téglaburkolat
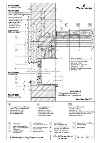
Ablakbeépítés függőleges metszete - PTH 50 Thermo Rapid + vakolat
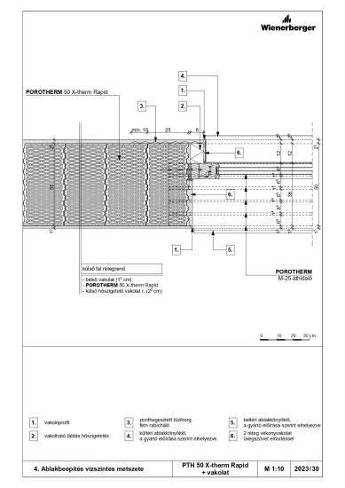
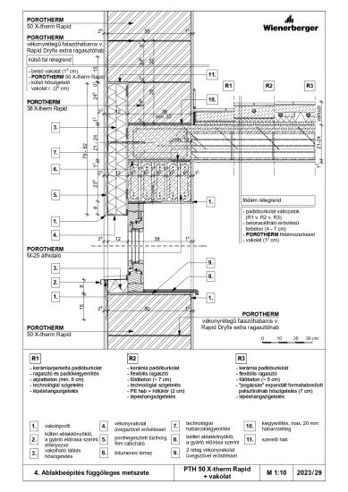
Ablakbeépítés függőleges metszete - PTH 50 X-therm Rapid + vakolat
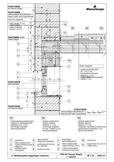
Ablakbeépítés függőleges metszete - PTH 44 Thermo Rapid + vakolat
Ablakbeépítés függőleges metszete - PTH 44 X-therm Rapid + vakolat
Ablakbeépítés függőleges metszete - PTH 44 X-therm Rapid + vakolat
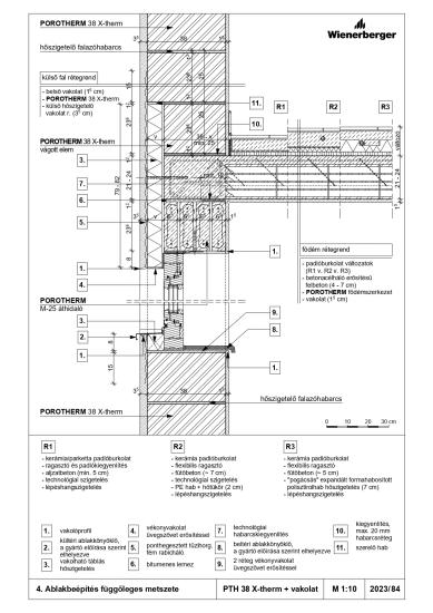
Ablakbeépítés függőleges metszete - PTH 38 X-therm Rapid + vakolat
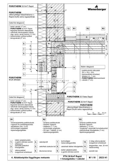
Ablakbeépítés függőleges metszete - PTH 30 N+F Rapid + hőszigetelés + vakolat
Ablakbeépítés függőleges metszete - PTH 30 N+F Rapid + hőszigetelés + vakolat
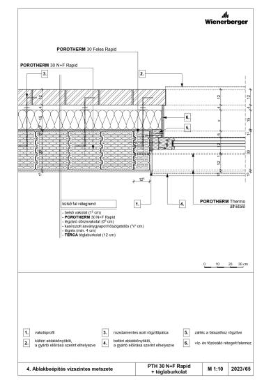
Ablakbeépítés függőleges metszete - PTH 30 N+F Rapid + téglaburkolat
Ablakbeépítés függőleges metszete - PTH 30 N+F Rapid + téglaburkolat
  Ablakbeépítés vízszintes metszete
Ablakbeépítés vízszintes metszete - PTH 44 X-therm + vakolat
Ablakbeépítés vízszintes metszete - PTH 38 X-therm + vakolat
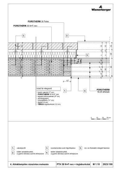
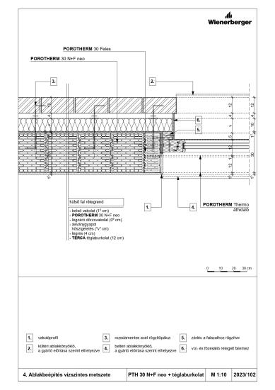
Ablakbeépítés vízszintes metszete - PTH 30 N+F neo + téglaburkolat
Ablakbeépítés vízszintes metszete - PTH 30 N+F neo + téglaburkolat
Ablakbeépítés vízszintes metszete - PTH 50 Thermo Profi + vakolat
Ablakbeépítés vízszintes metszete - PTH 50 X-therm Rapid + vakolat
Ablakbeépítés vízszintes metszete - PTH 44 Thermo Rapid + vakolat
Ablakbeépítés vízszintes metszete - PTH 44 X-therm Rapid + vakolat
Ablakbeépítés vízszintes metszete - PTH 38 Thermo Rapid + vakolat
Ablakbeépítés vízszintes metszete - PTH 38 X-therm Rapid + vakolat
Ablakbeépítés vízszintes metszete - PTH 30 N+F Rapid + hőszigetelés + vakolat
Ablakbeépítés vízszintes metszete - PTH 30 N+F Rapid + téglaburkolat
Ablakbeépítés vízszintes metszete - PTH 30 N+F Rapid + téglaburkolat
F-03 03 Íves pillér hőszigetelése
F-03 03 Íves pillér hőszigetelése
Hirdetés
    Mint minden weboldal, az eptar.hu is sütiket használ a jobb és biztonságosabb működés érdekében.       További információk