Detail drawings

Austrotherm
Bramac
Hofstädter Kft.
Hörmann
Terrán
Wienerberger
Ytong
Search Detail drawings 


Alapkép
Hirdetés


Roof Detail drawings   (Magastető)
Eaves shaping
  Külső fal és fedélszék kapcsolata tetőtérbeépítés nélkül
Magastető - tetőtérbeépítés nélkül - PTH 44 X-therm + vakolat
Magastető - tetőtérbeépítés nélkül - PTH 30 N+F + téglaburkolat
Magastető - tetőtérbeépítés nélkül - PTH 38 Thermo Rapid + vakolat
Magastető - tetőtérbeépítés nélkül - PTH 38 Thermo Rapid + téglaburkolat
  Külső fal és fedélszék kapcsolata térdfal nélküli tetőtérbeépítés esetén
Ereszkialakítás, tetőtérbeépítésnél, páraáteresztő alátétfóliával
Magastető - tetőtérbeépítés esetén - PTH 38 X-therm + vakolat
Magastető - tetőtérbeépítés esetén - PTH 30 N+F + téglaburkolat
Magastető - tetőtérbeépítés esetén - PTH 30 N+F Profi + hőszigetelés + vakolat
Magastető - tetőtérbeépítés esetén - PTH 38 Thermo Rapid + téglaburkolat
  Külső fal és fedélszék kapcsolata térdfalas tetőtérbeépítés esetén
  Eaves shaping
Tondach Twiston 9 tetőcserép
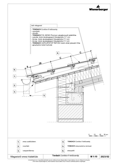
Tondach Contiton 9 tetőcserép
Tondach Planoton 14 tetőcserép
Tondach Planoton 9 tetőcserép
Tondach Renoton 15 tetőcserép
Tondach Renoton 9 tetőcserép
Tondach Veneton 14 tetőcserép
Tondach Hódfarkú ívesvágású 18x38 tetőcserép
Tondach Hódfarkú szegmensvágású 18x38 tetőcserép
Tondach Hódfarkú ívesvágású 19x40 tetőcserép
Tondach Hódfarkú szegmensvágású 19x40 tetőcserép
Tondach Táska szögletes tetőcserép
Tondach Osztrák Óvárosi táska tetőcserép
Tondach Kékes Ívesvágású tetőcserép
Tondach Kékes egyenesvágású tetőcserép
Tondach Kékes Plus Ívesvágású tetőcserép
Tondach Kékes Plus egyenesvágású tetőcserép
Tondach Pilis Ívesvágású tetőcserép
Tondach Pilis egyenesvágású tetőcserép
Tondach Pilis Max ívesvágású tetőcserép
Tondach Pilis Max egyenesvágású tetőcserép
Tondach Sindra Plus Natura tetőcserép
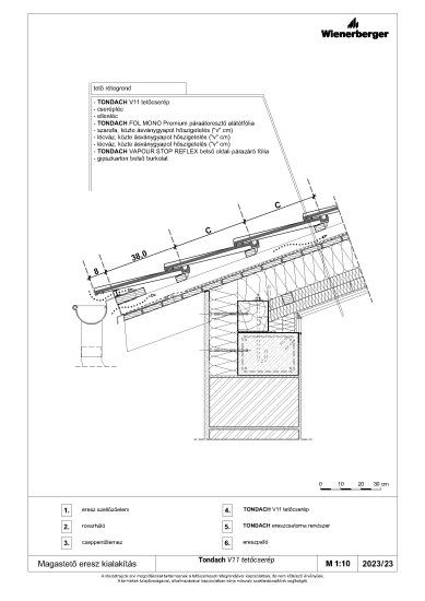
Tondach V11 tetőcserép
Tondach Actua 10 tetőcserép
Csüngő eresz kialakítása - látszó szarufavégekkel, szeglemezes fedélszék esetén
Csüngő eresz kialakítása - nem látszó szarufavégekkel, szeglemezes fedélszék esetén
  Eresz - Hullámos profilú cserepek: Coppo, Danubia, Synus, Renova Plus
Egyszeres átszellőztetésű tető
Kétszeres átszellőztetésű tető
Alacsony hajlásszögű tető, kétszeres átszellőztetéssel
  Eresz - Sík profilú cserepek: Zenit és Rundo
Egyszeres átszellőztetésű tető
Kétszeres átszellőztetésű tető
  Eresz - Terrán Generon napelemes tetőcserép
Kétszeres átszellőztetésű tető
  Eresz - MediComfort szarufa feletti tetőhőszigetelés
Eresz kis túlnyúlással
Eresz nagy túlnyúlással
  Padlásfödém
  Bramac Eaves shapinga
Eresz fém ereszcsatornával - Hullámos cserép
Eresz fém ereszcsatornával - Sík cserép
Hirdetés
    Like all websites, eptar.hu uses cookies for better and safer operation.       More information