Roof Detail drawings   (Magastető)
			
			
			
			
			 
			Roofpallós tetőtér
			 
			
				
						03.75. Tetőszerkezeti megoldás YTONG DA tetőpallóval, üres fedélszék
						
				
				
						03.74. YTONG tetőpallós tetőtér DA-20 cm
						
				
				
						03.72. YTONG DA tetőpallós födém
						
				
				
						03.71. Tetőtéri födém YTONG vasalt építőelemekből
						
				
				
						03.86. YTONG DA tetőpallók elhelyezése vasbeton teherhordó szerkezeten
						
				
				
						03.87. YTONG DA tetőpalló elhelyezése acél teherhordó szerkezeten
						
				
				
				
				
			
			 
			Hőszigetelés
			 
			
				
						M-01 01 Hőszigetelés szarufák alatt- és között
						
				
				
						M-01 02 Hőszigetelés szarufák felett
						
				
				
				
				
			
			 
			Félnyereg tető
			 
			
				
						Félnyereg tető falcsatlakozás, tetőtérbeépítésnél, páraáteresztő alátétfóliával
						
				
				
						Félnyereg tető gerinckialakítás, tetőtérbeépítésnél, páraáteresztő alátétfóliával
						
				
				
				
				
			
			 
			Oromszegély cserépfedéssel
			 
			
				
						Oromszegély cserépfedéssel, tetőtérbeépítésnél, páraáteresztő alátétfóliával
						
				
				
						Oromszegély fémlemez fedéssel, tetőtérbeépítésnél, páraáteresztő alátétfóliával
						
				
				
						01.10. Oromszegély - YTONG teherhordó falszerkezet kiszellőztetett SILKA burkoló előtétfallal
						
				
				
						01.11. Oromszegély - SILKA teherhordó falszerkezet kiszellőztetett SILKA burkoló előtétfallal
						
				
				
						01.12. Oromszegély - SILKA teherhordó falszerkezet + kiegészítő hőszigetelés
						
				
				
				
				
			
			 
			Kémény átvezetés magastetőn
			 
			
				
						Tetőtérbeépítésnél, ereszvonallal párhuzamos metszet
						
				
				
						Tetőtérbeépítésnél, ereszvonalra merőleges metszet
						
				
				
				
				
			
			 
			Bramac Hullámos, hornyolt tetőcserepek csomópontjai
			 
			
				
						Durovent antennakivezető-egység Fóliagyűrűvel
						
				
				
						Durovent csatornaszellőző-egység Fóliagyűrűvel 2.
						
				
				
						Durovent füstgázkivezető-egység Fólia kivágással
						
				
				
						Durovent helyiségkiszellőztetőegység Fóliagyűrűvel
						
				
				
						Élgerinc Univerzális kúpalátéttel, gerincléctartóval
						
				
				
						Taréjgerinc kúpalátéttel, gerincléctartóval
						
				
				
						Félnyereg gerinc Félnyereg lezárócseréppel
						
				
				
						Állóablak és Tetőcsatlakozás, Wakaflex kémény- és falszegéllyel
						
				
				
						Falszegély Wakaflex kémény- és falszegéllyel
						
				
				
						Oldalsó falszegély Wakaflex kémény- és falszegéllyel
						
				
				
						Tetőzug, falszegély Wakaflex kémény- és falszegéllyel
						
				
				
						Tetősíkablak platinum, római, adria és duna tetőcseréppel
						
				
				
						Univerzális tetőkibúvó ablak Fóliacsatornával
						
				
				
						Járás a tetőn Biztonsági rács- vagy lépcsőfoktartó elemmel
						
				
				
						Hófogás Hófogóráccsal
						
				
				
						Biztonsági tetőhorog Rögzítősínnel és csavarkészlettel
						
				
				
						Tetőhajlásszög-törés Wakaflex kémény- és falszegéllyel
						
				
				
						Tetőhajlásszög-törés Wakaflex kémény- és falszegéllyel
						
				
				
						Bramac Hullámos cserép oromszegély szegélycseréppel
						
				
				
						Bramac Hullámos cserép fém oromszegéllyel
						
				
				
				
				
			
			 
			Bramac Sík, hornyolt tetőcserép csomópontok
			 
			
				
						Durovent antennakivezető-egység Fóliagyűrűvel
						
				
				
						Durovent csatornaszellőző-egység Fóliagyűrűvel
						
				
				
						Durovent füstgázkivezető-egység Fóliakivágással
						
				
				
						Durovent helyiségkiszellőztető-egység Fóliagyűrűvel
						
				
				
						Taréjgerinc Univerzális kúpalátéttel, gerincléctartóval
						
				
				
						Élgerinc Univerzális kúpalátéttel, gerincléctartóval
						
				
				
						Félnyereg Univerzális kúpalátéttel, gerincléctartóval
						
				
				
						Félnyereg gerinc fémlemezzel
						
				
				
						Állóablak és tetőcsatlakozás, Wakaflex kémény- és falszegéllyel
						
				
				
						Falszegély Wakaflex kémény- és falszegéllyel
						
				
				
						Oldalsó falszegély Wakaflex kémény- és falszegéllyel
						
				
				
						Tetőzug, falszegély Wakaflex kémény- és falszegéllyel
						
				
				
						Luminex univerzális tetőkibúvó Fóliacsatornával
						
				
				
						Tetősíkablak bramac reviva, tectura tetőcseréppel
						
				
				
						Biztonsági tetőhorog rögzítősínnel és csavarkészlettel
						
				
				
						Hófogás Hófogóráccsal
						
				
				
						Járócserép Biztonsági ráccsal vagy lépcsőfokkal
						
				
				
						Tetőhajlásszög törés Wakaflex kémény- és falszegéllyel
						
				
				
						Tetőhajlásszög törés Wakaflex kémény- és falszegéllyel
						
				
				
						Bramac Sík cserép oromszegély szegélycseréppel
						
				
				
						Bramac Sík cserép fém oromszegéllyel
						
				
				
				
				
			
			 
			Bramac Therm csomópontok
			 
			
				
						Tetőáttörés Durovent csatorna- és helyiségkiszellőztetők átvezetése - 180 fok
						
				
				
						Tetőáttörés Durovent csatorna- és helyiségkiszellőztetők átvezetése - 90 fok
						
				
				
						Élgerinc kialakítás Bramac Therm hőszigetelő elemek
						
				
				
						Ereszkialakítás Bramac Therm hőszigeteléssel, fém ereszcsatornával 1. - Látszó szerkezet
						
				
				
						Ereszkialakítás Bramac Therm hőszigeteléssel, fém ereszcsatornával 2. - Látszó szerkezet
						
				
				
						Ereszkialakítás Bramac Therm hőszigeteléssel, fém ereszcsatornával 1. - Szálas hőszigeteléssel
						
				
				
						Ereszkialakítás Bramac Therm hőszigeteléssel, fém ereszcsatornával 2. - Szálas hőszigeteléssel
						
				
				
						Kémény- és falcsatlakozás csatlakozás kéményekhez és tűzgátló szerkezetekhez
						
				
				
						Oromszegély kialakítása Bramac Therm hőszigetelő elemek és a párazáró réteg csatlakoztatása oromfalhoz 1.
						
				
				
						Oromszegély kialakítása Bramac Therm hőszigetelő elemek és a párazáró réteg csatlakoztatása oromfalhoz 2.
						
				
				
						Vápa kialakítása Bramac Therm hőszigetelő elemek hőhídmentes csatlakoztatása
						
				
				
						Bramac Therm hőszigetelő tábla rögzítés (Bramac Therm rendszercsavar rögzítés nyíró igénybevételre / szélteher igénybevételre)
						
				
				
						Taréjgerinc kialakítás hőhídmentes csatlakozás
						
				
				
						Tetőtéri ablakok beépítése Bramac Therm hőszigetelő rendszerhez
						
				
				
				
				
			
			 
			Bramac 7 Roofrendszer
			 
			
				
						Ereszkialakítás Bramac Fém ereszcsatornával, dupla cseppentőlemezzel
						
				
				
						Ereszkialakítás Bramac Fém ereszcsatornával, cseppentőlemezzel
						
				
				
						Taréjgerinc MetalRoll univerzális kúpalátéttel, gerincléctartóval
						
				
				
						Élgerinc MetalRoll univerzális kúpalátéttel, gerincléctartóval
						
				
				
						Biztonsági tetőhorog rögzítősínnel és csavarkészlettel
						
				
				
						Falszegély Wakaflex kémény- és falszegéllyel, szellőzőcseréppel
						
				
				
						Falszegély Wakaflex kémény- és falszegéllyel, szellőzőcserép nélkül
						
				
				
						Oldalsó falszegély Wakaflex kémény- és falszegéllyel
						
				
				
						Oromszegély Szegélycseréppel
						
				
				
						Oromszegély Fém oromszegéllyel
						
				
				
						Félnyereg gerinc Félnyeregtető cseréppel
						
				
				
						Bramac Modul Napkollektor álló kivitelben
						
				
				
						Járócserép biztonsági ráccsal vagy lépcsőfokkal
						
				
				
						Napelem tartómodul vertikális elhelyezésben
						
				
				
						Napelem tartómodul horizontális elhelyezésben
						
				
				
						Vápa kialakítás
						
				
				
				
				
			
			 
			Wolf Haus tető
			 
			
				
						Oromfal kialakítás - túlfutó tetőnél,látszó szaruzattal
						
				
				
						Térdfal és tetőtér feletti födém kialakítás - középszelemennél, hagyományos fedélszék esetében
						
				
				
						Tetőgerinc kialakítása félnyereg tetőnél - látszó szaruzat esetében, tetőtérben
						
				
				
				
				
			
			 
			MediCOMFORT  szarufa feletti tetőhőszigetelés
			 
			
				
						Orom - MediCOMFORT  szarufa feletti tetőhőszigetelés
						
				
				
						Orom nagy kiüléssel - MediCOMFORT  szarufa feletti tetőhőszigetelés
						
				
				
						Általános hosszmetszet - MediCOMFORT  szarufa feletti tetőhőszigetelés
						
				
				
				
				
			
			 
			Rooftérbeépítés esetén
			 
			
				
						Magastető - tetőtérbeépítés esetén - PTH 10 N+F
						
				
				
						Magastető - tetőtérbeépítés esetén - PTH 10 N+F
						
				
				
						Magastető - tetőtérbeépítés esetén - PTH 50 Thermo Rapid + vakolat
						
				
				
						Magastető - tetőtérbeépítés esetén - PTH 50 X-therm Rapid + vakolat
						
				
				
						Magastető - tetőtérbeépítés esetén - PTH 44 Thermo Rapid + vakolat
						
				
				
						Magastető - tetőtérbeépítés esetén - PTH 44 X-therm Rapid + vakolat
						
				
				
						Magastető - tetőtérbeépítés esetén - PTH 10 N+F Rapid
						
				
				
						Magastető - tetőtérbeépítés esetén - PTH 10 N+F Rapid
						
				
				
						Magastető - tetőtérbeépítés esetén - PTH 30 N+F + téglaburkolat
						
				
				
						Magastető - tetőtérbeépítés esetén - PTH 38 X-therm + vakolat
						
				
				
						Magastető - tetőtérbeépítés esetén - PTH 38 Thermo Rapid + téglaburkolat
						
				
				
				
				
				
								
				Eaves shaping
				
				
			
			 
			Külső fal és fedélszék kapcsolata tetőtérbeépítés nélkül
			 
			
				
						Magastető - tetőtérbeépítés nélkül - PTH 44 X-therm + vakolat
						
				
				
						Magastető - tetőtérbeépítés nélkül - PTH 30 N+F + téglaburkolat
						
				
				
						Magastető - tetőtérbeépítés nélkül - PTH 38 Thermo Rapid + vakolat
						
				
				
						Magastető - tetőtérbeépítés nélkül - PTH 38 Thermo Rapid + téglaburkolat
						
				
				
				
				
			
			 
			Külső fal és fedélszék kapcsolata térdfal nélküli tetőtérbeépítés esetén
			 
			
				
						Ereszkialakítás, tetőtérbeépítésnél, páraáteresztő alátétfóliával
						
				
				
						Magastető - tetőtérbeépítés esetén - PTH 38 X-therm + vakolat
						
				
				
						Magastető - tetőtérbeépítés esetén - PTH 30 N+F + téglaburkolat
						
				
				
						Magastető - tetőtérbeépítés esetén - PTH 30 N+F Profi + hőszigetelés + vakolat
						
				
				
						Magastető - tetőtérbeépítés esetén - PTH 38 Thermo Rapid + téglaburkolat
						
				
				
				
				
			
			 
			Külső fal és fedélszék kapcsolata térdfalas tetőtérbeépítés esetén
			 
			
				
				
				
			
			 
			Eaves shaping
			 
			
				
						Tondach Twiston 9 tetőcserép
						
				
				
						Tondach Contiton 9 tetőcserép
						
				
				
						Tondach Planoton 14 tetőcserép
						
				
				
						Tondach Planoton 9 tetőcserép
						
				
				
						Tondach Renoton 15 tetőcserép
						
				
				
						Tondach Renoton 9 tetőcserép
						
				
				
						Tondach Veneton 14 tetőcserép
						
				
				
						Tondach Hódfarkú ívesvágású 18x38 tetőcserép
						
				
				
						Tondach Hódfarkú szegmensvágású 18x38 tetőcserép
						
				
				
						Tondach Hódfarkú ívesvágású 19x40 tetőcserép
						
				
				
						Tondach Hódfarkú szegmensvágású 19x40 tetőcserép
						
				
				
						Tondach Táska szögletes tetőcserép
						
				
				
						Tondach Osztrák Óvárosi táska tetőcserép
						
				
				
						Tondach Kékes Ívesvágású tetőcserép
						
				
				
						Tondach Kékes egyenesvágású tetőcserép
						
				
				
						Tondach Kékes Plus Ívesvágású tetőcserép
						
				
				
						Tondach Kékes Plus egyenesvágású tetőcserép
						
				
				
						Tondach Pilis Ívesvágású tetőcserép
						
				
				
						Tondach Pilis egyenesvágású tetőcserép
						
				
				
						Tondach Pilis Max ívesvágású tetőcserép
						
				
				
						Tondach Pilis Max egyenesvágású tetőcserép
						
				
				
						Tondach Sindra Plus Natura tetőcserép
						
				
				
						Tondach V11 tetőcserép
						
				
				
						Tondach Actua 10 tetőcserép
						
				
				
						Csüngő eresz kialakítása - látszó szarufavégekkel, szeglemezes fedélszék esetén
						
				
				
						Csüngő eresz kialakítása - nem látszó szarufavégekkel, szeglemezes fedélszék esetén
						
				
				
				
				
			
			 
			Eresz - Hullámos profilú cserepek: Coppo, Danubia, Synus, Renova Plus
			 
			
				
						Egyszeres átszellőztetésű tető
						
				
				
						Kétszeres átszellőztetésű tető
						
				
				
						Alacsony hajlásszögű tető, kétszeres átszellőztetéssel
						
				
				
				
				
			
			 
			Eresz - Sík profilú cserepek: Zenit és Rundo
			 
			
				
						Egyszeres átszellőztetésű tető
						
				
				
						Kétszeres átszellőztetésű tető
						
				
				
				
				
			
			 
			Eresz - Terrán Generon napelemes tetőcserép
			 
			
				
						Kétszeres átszellőztetésű tető
						
				
				
				
				
			
			 
			Eresz - MediComfort szarufa feletti tetőhőszigetelés
			 
			
				
						Eresz kis túlnyúlással
						
				
				
						Eresz nagy túlnyúlással
						
				
				
				
				
			
			 
			Padlásfödém
			 
			
				
				
				
			
			 
			Bramac Eaves shapinga
			 
			
				
						Eresz fém ereszcsatornával - Hullámos cserép
						
				
				
						Eresz fém ereszcsatornával - Sík cserép
						
				
				
				
				
				
								
				Ridge shaping
				
				
			
			 
			Taréj - Hullámos profilú cserepek: Coppo, Danubia, Synus, Renova Plus
			 
			
				
						Egyszeres átszellőztetésű tető - Synus
						
				
				
						Kétszeres átszellőztetésű tető - Synus
						
				
				
						Egyszeres átszellőztetésű tető - Danubia, Coppo, Renova Plus
						
				
				
						Kétszeres átszellőztetésű tető - Danubia, Coppo, Renova Plus
						
				
				
				
				
			
			 
			Taréj - Sík profilú cserepek: Zenit és Rundo
			 
			
				
						Taréj - Egyszeres átszellőztetésű tető
						
				
				
						Taréj - Kétszeres átszellőztetésű tető
						
				
				
				
				
			
			 
			Taréj - Terrán Generon napelemes tetőcserép
			 
			
				
						Taréj - Kétszeres átszellőztetésű tető
						
				
				
				
				
			
			 
			Taréj - MediComfort szarufa feletti tetőhőszigetelés
			 
			
				
						Taréj - Egyszeres átszellőztetésű tető
						
				
				
				
				
			
			 
			Ridge shaping tetőtérbeépítésnél
			 
			
				
						Gerinckialakítás, tetőtérbeépítésnél, páraáteresztő alátétfóliával
						
				
				
						Tetőtér beépítésnél, páraáteresztő alátétfóliával
						
				
				
				
				
				
								
				Furrow solution
				
				
			
			 
			Vápa kialakítás Tondach cserepekkel
			 
			
				
						Hasznosított újépítésű tető építése egyrétegű PIR szarufa feletti hőszigeteléssel. 35° tetőhajlásszög esetén. Egyszeresen átszellőztetett rétegrend.
						
				
				
						Hasznosított újépítésű tető kombinált szálas hőszigeteléssel és PIR szarufa feletti hőszigeteléssel.
						
				
				
						Hasznosított tető meglévő bennmaradó szálas hőszigeteléssel és PIR szarufa feletti szigeteléssel.
						
				
				
				
				
			
			 
			Vápa - Hullámos profilú cserepek: Coppo, Danubia, Synus, Renova Plus
			 
			
				
						Vápa - Egyszeres átszellőztetésű tető
						
				
				
						Vápa - Sülyesztett vápa
						
				
				
				
				
			
			 
			Vápa - Sík profilú cserepek: Zenit, Rundo
			 
			
				
						Vápa - Egyszeres átszellőztetésű tető
						
				
				
						Vápa - Sülyesztett vápa
						
				
				
				
				
			
			 
			Vápa - MediCOMFORT szarufa feletti tetőhőszigetelés
			 
			
				
						Vápa - Egyszeres átszellőztetésű tető
						
				
				
				
				
			
			 
			Vápa kialakítás Bramac hullámos, hornyolt cserepekkel
			 
			
				
						Süllyesztett vápa
						
				
				
						Vápa profilo s fém (acél) vápaelemmel
						
				
				
				
				
			
			 
			Vápa kialakítás Bramac sík, hornyolt tetőcserepek
			 
			
				
						Süllyesztett vápakialakítás kiszellőztetett vápával
						
				
				
						Vápakialakítás profilo s fém vápával
						
				
				
						Süllyesztett vápakialakítás
						
				
				
				
				
			
			 
			Vápakialakítás
			 
			
				
						Vápakialakítás, tetőtér beépítésnél, páraáteresztő alátétfóliával
						
				
				
				
				
				
								
				Rooftéri ablak kialakítása
				
				
			
			 
			Egyes beépítés - Windowcsere keretek 2003 előtt beépítési magassághoz
			 
			
				
						GGL típusú VELUX tetőtéri ablak beépítése palafedésbe EDS + ELX burkolókerettel
						
				
				
						GGL típusú VELUX tetőtéri ablak beépítése kiselemes pala fedésbe EL burkolókerettel
						
				
				
						GGL típusú VELUX tetőtéri ablak beépítése cserépfedésbe EW burkolókerettel
						
				
				
				
				
			
			 
			Egyéni beépítés - Standard beépítéshez
			 
			
				
						GGL típusú VELUX tetőtéri ablak beépítése kettős hódfarkú fedésbe EDB burkolókerettel
						
				
				
						GZL típusú VELUX tetőtéri ablak beépítése réz vagy cink korcolt fémlemez fedésbe EDE burkolókerettel
						
				
				
						GZL típusú VELUX tetőtéri ablak beépítése kiselemes pala fedésbe EDL burkolókerettel
						
				
				
						GZL típusú VELUX tetőtéri ablak beépítése max. 2x 8 mm anyagvastagságú pala és zsindely fedésbe EDS burkolókerettel
						
				
				
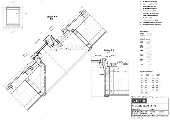
						GZL típusú VELUX tetőtéri ablak beépítése max. 45 mm anyagvastagságú fedésbe EDZ burkolókerettel
						
				
				
						GZL típusú VELUX tetőtéri ablak beépítése max. 120 mm hullámmagasságú cserépfedésbe EDW burkolókerettel
						
				
				
						GDL típusú VELUX tetőtéri ablak beépítése max. 120 mm hullámmagasságú cserépfedésbe EDW burkolókerettel
						
				
				
						GZL típusú VELUX tetőtéri ablak beépítése max. 120 mm hullámmagasságú trapézlemez fedésbe EDW burkolókerettel
						
				
				
						GZL típusú VELUX tetőtéri ablak beépítése korcolt fémlemez fedésbe ZWC takarólemezekkel
						
				
				
						Tetősík ablak beépítés, tetőtérbeépítésnél, páraáteresztő alátétfóliával, ereszvonalra merőleges metszet
						
				
				
						Tetősík ablak beépítés, tetőtérbeépítésnél, páraáteresztő alátétfóliával, ereszvonallal párhuzamos metszet
						
				
				
				
				
			
			 
			Egyes beépítés - Süllyesztett beépítéshez
			 
			
				
						GGL típusú VELUX tetőtéri ablak beépítése max. 90 mm hullámmagasságú cserépfedésbe EDJ burkolókerettel
						
				
				
						GGL típusú VELUX tetőtéri ablak beépítése kiselemes pala fedésbe EDN burkolókerettel
						
				
				
				
				
			
			 
			Csoportos beépítés - Standard beépítéshez
			 
			
				
						GGL típusú VELUX tetőtéri ablak beépítése kettős hódfarkú fedésbe EKB burkolókerettel
						
				
				
						GGL típusú VELUX tetőtéri ablak beépítése réz vagy cink korcolt fémlemez fedésbe EKE burkolókerettel
						
				
				
						GGL típusú VELUX tetőtéri ablak beépítése max. 2 x 8 mm anyagvastagságú pala és zsindely fedésbe EKS burkolókerettel
						
				
				
						GGL típusú VELUX tetőtéri ablak beépítése max. 120 mm hullámmagasságú cserépfedésbe EKW burkolókerettel
						
				
				
						GGL típusú VELUX tetőtéri ablak beépítése max. 45 mm anyagvastagságú fedésbe EKZ burkolókerettel
						
				
				
				
				
			
			 
			Csoportos beépítés - Süllyesztett beépítéshez
			 
			
				
						GGL típusú VELUX tetőtéri ablak beépítése max. 90 mm hullámmagasságú cserépfedésbe EKJ burkolókerettel
						
				
				
						GGL típusú VELUX tetőtéri ablak beépítése kiselemes pala fedésbe EKN burkolókerettel
						
				
				
				
				
			
			 
			Speciális csoportos beépítések - Standard beépítéshez
			 
			
				
						GGL típusú VELUX tetőtéri ablakok kettős összeépítése max. 120 mm hullámmagasságú cserépfedésbe EBW burkolókerettel EBY segédszarufával
						
				
				
						GGL típusú VELUX tetőtéri ablakok kettős összeépítése max. 45 mm hullámmagasságú cserépfedésbe EBZ burkolókerettel EBY segédszarufával
						
				
				
						GGL és VFE típusú VELUX tetőtéri ablakok térdfalas összeépítése max. 120 mm hullámmagasságú cserépfedésbe EFW burkolókerettel
						
				
				
						GGL és GIL típusú VELUX tetőtéri ablakok összeépítése max. 120 mm hullámmagasságú cserépfedésbe EKW és ETW burkolókerettel
						
				
				
						GGL típusú VELUX tetőtéri ablakok tetőgerincen sorolása max. 120 mm hullámmagasságú cserépfedésbe EKX88 és EDW burkolókerettel
						
				
				
				
				
			
			 
			Speciális csoportos beépítések - Süllyesztett beépítéshez
			 
			
				
						GGL billenő és GIL fix típusú VELUX tetőtéri ablak beépítése EDJ és ETJ burkolókerettel max. 90 mm profilmagasságú  cserép fedésbe  
						
				
				
						GGL billenő és GIL fix típusú VELUX tetőtéri ablak beépítése EDN és ETN burkolókerettel kiselemes pala tetőfedő anyagba max. 2 x 8 mm
						
				
				
						GGL billenő VELUX tetőtéri ablak és VFE bukó VELUX térdfalablak beépítése EFJ burkolókerettel max. 90 mm profilmagasságú  cserép fedésbe
						
				
				
						GGU billenő VELUX tetőtéri ablak és VIU fix VELUX térdfalablak beépítése EFJ burkolókerettel max. 90 mm profilmagasságú  cserép fedésbe
						
				
				
						GGL billenő VELUX tetőtéri ablak és VFE bukó VELUX térdfalablak beépítése EFN burkolókerettel kiselemes pala tetőfedő anyagba max. 2 x 8 mm
						
				
				
				
				
			
			 
			Rooftéri ablak - MediCOMFORT  szarufa feletti tetőhőszigetelés
			 
			
				
						Tetőablak
						
				
				
				
				
				
								
				Roofelemek kialakítása
				
				
			
			 
			Szellőző kivezetés
			 
			
				
						Szellőző kivezetés, tetőtérbeépítésnél, páraáteresztő alátétfóliával
						
				
				
				
				
			
			 
			Csatornaszellőző - Hullámos profilú cserepek: Coppo, Danubia, Synus, Renova Plus
			 
			
				
						Kétszeres átszellőztetésű tető
						
				
				
				
				
			
			 
			Antennakivezető - Hullámos profilú cserepek: Coppo, Danubia, Synus, Renova Plus
			 
			
				
						Kétszeres átszellőztetésű tető
						
				
				
				
				
			
			 
			Roofkibúvó - Hullámos profilú cserepek: Coppo, Danubia, Synus, Renova Plus
			 
			
				
						Kétszeres átszellőztetésű tető
						
				
				
				
				
			
			 
			Roofkibúvó - Sík profilú cserepek: Zenit, Rundo
			 
			
				
						Kétszeres átszellőztetésű tető
						
				
				
				
				
			
			 
			Szolártartó - Hullámos profilú cserepek: Coppo, Danubia, Synus, Renova Plus
			 
			
				
						Szolártartó
						
				
				
				
				
			
			 
			Szolártartó - Sík profilú cserepek: Zenit, Rundo
			 
			
				
						Szolártartó
						
				
				
				
				
			
			 
			Roofhajlásszög-törés hullámos profilú cserepek esetén
			 
			
				
						Tetőhajlásszög-törés kis lejtésű fémlemez fedéssel hullámos profilú cserépnél (fémlemezfedés alatt átvezetett alátéthéjazattal)
						
				
				
						Tetőhajlásszög-törés kis lejtésű fémlemez fedéssel hullámos profilú cserépnél (fémlemezre rávezetett alátéthéjazattal)
						
				
				
				
				
			
			 
			Roofhajlásszög-törés sík profilú cserepek esetén
			 
			
				
						Tetőhajlásszög-törés kis lejtésű fémlemez fedéssel sík profilú cserépnél (fémlemezfedés alatt átvezetett alátéthéjazattal)
						
				
				
						Tetőhajlásszög-törés kis lejtésű fémlemez fedéssel sík profilú cserépnél (fémlemezre rávezetett alátéthéjazattal)
						
				
				
				
				
			
			 
			Napkollektor
			 
			
				
						Bramac Modul Napkollektor álló kivitelben
						
				
				
				
				
				
								
				Ridge shaping
				
				
			
			 
			Élgerinc - Hullámos profilú cserepek: Coppo, Danubia, Synus, Renova Plus
			 
			
				
						Élgerinc - Egyszeres átszellőztetésű tető - Synus
						
				
				
						Élgerinc - Kétszeres átszellőztetésű tető - Synus
						
				
				
						Élgerinc - Egyszeres átszellőztetésű tető - Danubia, Coppo, Renova Plus
						
				
				
						Élgerinc - Kétszeres átszellőztetésű tető - Danubia, Coppo, Renova Plus
						
				
				
				
				
			
			 
			Élgerinc - Sík profilú cserepek: Zenit és Rundo
			 
			
				
						Élgerinc - Egyszeres átszellőztetésű tető
						
				
				
						Élgerinc - Kétszeres átszellőztetésű tető
						
				
				
				
				
			
			 
			Élgerinc - MediComfort szarufa feletti tetőhőszigetelés
			 
			
				
						Élgerinc - Egyszeres átszellőztetésű tető 
						
				
				
				
				
			
			 
			Pitched roof gerinc kialakítás
			 
			
				
						Tondach Twiston 9 tetőcserép
						
				
				
						Tondach Contiton 9 tetőcserép
						
				
				
						Tondach Planoton 14 tetőcserép
						
				
				
						Tondach Planoton 9 tetőcserép
						
				
				
						Tondach Renoton 15 tetőcserép
						
				
				
						Tondach Renoton 9 tetőcserép
						
				
				
						Tondach Veneton 14 tetőcserép
						
				
				
						Tondach Hódfarkú ívesvágású 18x38 tetőcserép
						
				
				
						Tondach Hódfarkú szegmensvágású 18x38 tetőcserép
						
				
				
						Tondach Hódfarkú ívesvágású 19x40 tetőcserép
						
				
				
						Tondach Hódfarkú szegmensvágású 19x40 tetőcserép
						
				
				
						Tondach Táska szögletes tetőcserép
						
				
				
						Tondach Osztrák Óvárosi táska tetőcserép
						
				
				
						Tondach Kékes Ívesvágású tetőcserép
						
				
				
						Tondach Kékes egyenesvágású tetőcserép
						
				
				
						Tondach Kékes Plus Ívesvágású tetőcserép
						
				
				
						Tondach Kékes Plus egyenesvágású tetőcserép
						
				
				
						Tondach Pilis Ívesvágású tetőcserép
						
				
				
						Tondach Pilis egyenesvágású tetőcserép
						
				
				
						Tondach Pilis Max ívesvágású tetőcserép
						
				
				
						Tondach Pilis Max egyenesvágású tetőcserép
						
				
				
						Tondach Sindra Plus Natura tetőcserép
						
				
				
						Tondach V11 tetőcserép
						
				
				
						Tondach Actua 10 tetőcserép
						
				
				
						Hasznosított újépítésű tető építése kombinált szálas hőszigeteléssel és PIR szarufa feletti hőszigeteléssel. 20° tetőhajlásszög esetén. Egyszeresen átszellőztetett rétegrend.
						
				
				
						Hasznosított újépítésű tető egyrétegű PIR szarufa feletti hőszigeteléssel. 22° tetőhajlászög esetén.
						
				
				
						Hasznosított tető meglévő bennmaradó szálas hőszigeteléssel és PIR szarufa feletti szigeteléssel. 20° tetőhajlásszög esetén
						
				
				
				
				
				
								
				Roof and wall connection
				
				
			
			 
			Válaszfal és fedélszék kapcsolata, szarufához csatlakozva
			 
			
				
				
				
			
			 
			Válaszfal és fedélszék kapcsolata, fogópárhoz csatlakozva
			 
			
				
				
				
			
			 
			Roof and wall connection
			 
			
				
						Falcsatlakozás szegélylemezzel, tetőtérbeépítésnél, páraáteresztő alátétfóliával
						
				
				
						Falcsatlakozás fémlemezzel, tetőtérbeépítésnél, páraáteresztő alátétfóliával
						
				
				
						03.73. Szélsőfőfali csatlakozás hosszmetszet
						
				
				
						03.79. Középfőfali csatlakozás hosszmetszet
						
				
				
				
				
			
			 
			Rooftéri térdfal
			 
			
				
						02.14. Válaszfal kapcsolata tetőtéri szerkezethez (ferde felülethez)
						
				
				
				
				
			
			 
			Rooftéri belső térdfal kialakítása
			 
			
				
						02.15. Példa tetőtéri térdfal beépítésére függőleges metszet
						
				
				
				
				
			
			 
			Homlokzati fal és padlásfödém csatlakozás
			 
			
				
				
				
				
								
				Tie beams, collar beams
				
				
			
			 
			Tie beams, collar beams 
			 
			
				
				
				
			
			 
			Manzárd - Hullámos profilú cserepek: Coppo, Danubia, Synus, Renova Plus
			 
			
				
						Manzárd - Egyszeres átszellőztetésű tető - Synus
						
				
				
						Manzárd - Kétszeres átszellőztetésű tető - Synus
						
				
				
						Manzárd - Egyszeres átszellőztetésű tető - Danubia, Coppo, Renova Plus
						
				
				
						Manzárd - Kétszeres átszellőztetésű tető - Danubia, Coppo, Renova Plus
						
				
				
				
				
			
			 
			Manzárd - Sík profilú cserepek: Zenit, Rundo
			 
			
				
						Manzárd - Egyszeres átszellőztetésű tető
						
				
				
						Manzárd - Kétszeres átszellőztetésű tető
						
				
				
				
				
				
								
				Green roof
				
				
			
			 
			Green roof
			 
			
				
				
				
				
								
				Light Tubes
				
				
			
			 
			Fénycsatorna kialakítása
			 
			
				
						TWR típusú VELUX fénycsatorna beépítése cserépfedésbe
						
				
				
						TLR típusú VELUX fénycsatorna pala fedésbe építve
						
				
				
						TLF típusú VELUX fénycsatorna pala fedésbe építve